£1,100,000

Minchenden Crescent, London, N14

  • 3
  • 2
Share

Key Features

  • Semi-detached Home
  • 3 Bedrooms
  • 3 Receptions
  • 2 Bathrooms
  • Conservatory
  • Large Rear Garden with Side Access
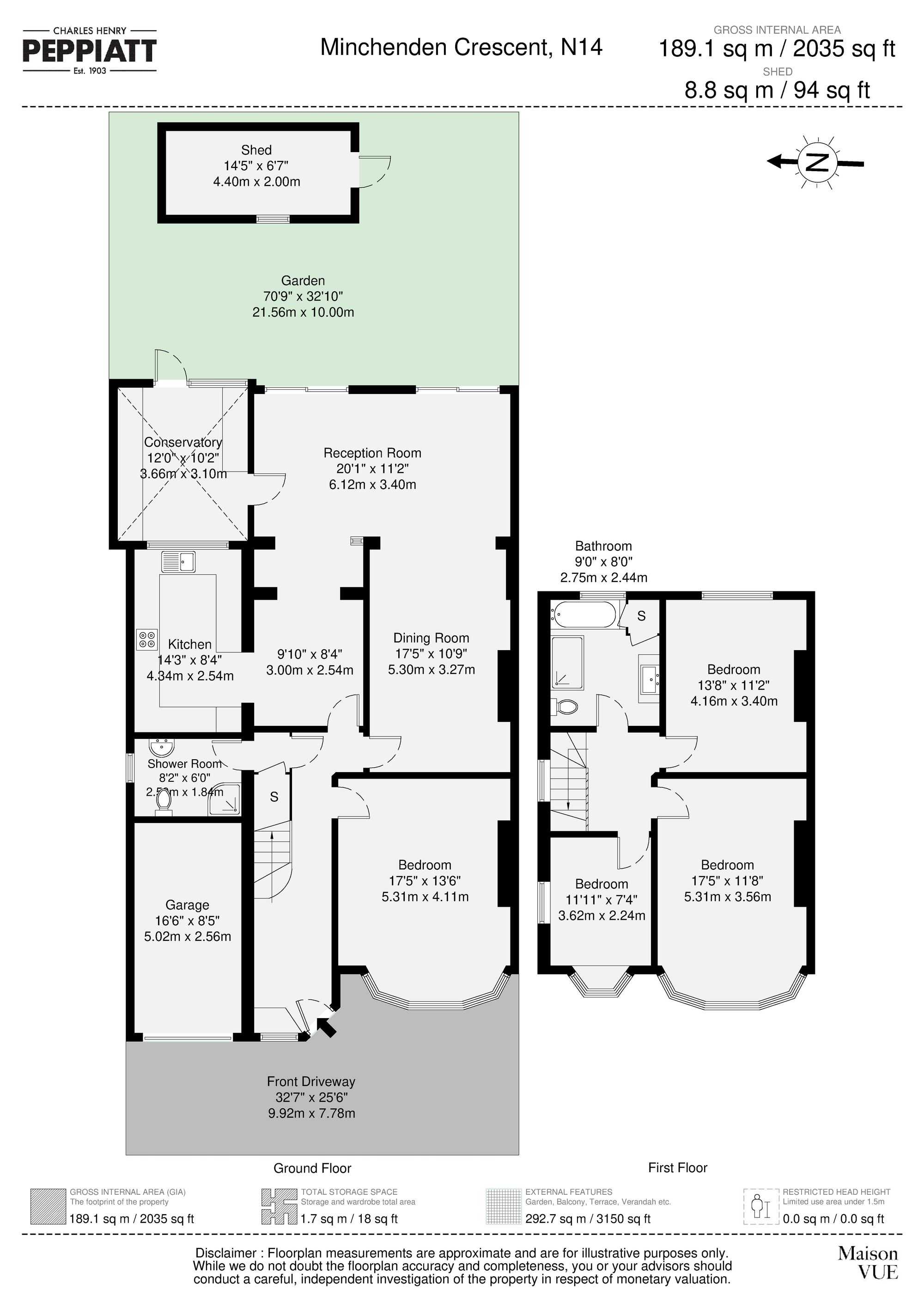
  • 2035 sq.ft
  • Off-street Parking + Garage
  • Potential to Modernise
  • Quiet Residential Road

Property Description

The ground floor is thoughtfully arranged to provide three separate reception rooms, offering flexibility to suit a variety of lifestyles. A formal dining room provides an excellent space for entertaining, while the principal living room is positioned to the rear and enjoys pleasant views over the garden, creating a bright and comfortable setting for everyday relaxation. A third reception room offers additional seating space and would work equally well as a family room.

The property also benefits from a spacious open-plan modern kitchen, designed with ample worktop space and extensive storage. The layout allows for both practicality and sociable living. To the rear, a conservatory provides further versatile space and is currently utilised as a utility area with additional storage. Completing the ground floor is a full three-piece bathroom comprising shower, WC and wash basin, offering added convenience for guests and busy households.

Upstairs, the first floor comprises two well-proportioned double bedrooms and a third bedroom, ideal as a single bedroom, study or nursery. The property also features a large, beautifully tiled family bathroom fitted with a four-piece suite including bathtub, separate shower enclosure, WC and wash basin, providing comfort and practicality for family life.

As with many homes along Minchenden Crescent, there is clear potential for further expansion into the loft space, subject to the necessary planning consents, allowing buyers the opportunity to increase accommodation and long-term value. This property also allows for new owners to create their own stamp.

Externally, the home offers private off-street parking for two to three vehicles, in addition to a secure garage. The rear garden provides a pleasant outdoor space with patioed and grassed areas, ideal for relaxing or entertaining during the warmer months.

Location & Amenities

Minchenden Crescent is widely regarded as one of N14’s most desirable residential roads, appreciated for its quiet, tree-lined setting and strong community atmosphere while remaining highly convenient.

The property is well positioned for access to Southgate Underground Station and Oakwood Underground Station (Piccadilly Line) and Palmers Green overground station, providing direct connections into Central London and Heathrow Airport.

Drivers have great access to major roads such as the A10, A406 and M25.

Families are particularly drawn to the area due to its proximity to well-regarded schools including Ashmole Academy, Walker Primary School and St Monica's Catholic Primary School.

For outdoor leisure, the beautiful Grovelands Park and Broomfield Park is close by, offering open green spaces and woodland walks.

Southgate High Street provides a wide selection of cafés, restaurants, supermarkets and everyday shopping amenities, ensuring excellent local convenience.

An outstanding opportunity to acquire a generously sized family home in a prime N14 location, offering space, flexibility and future potential.


Mortgage Calculator


Stamp Duty

Calculate Your Stamp Duty
£
Results
Stamp Duty To Pay:
Effective Rate:
Tax Band % Taxable Sum Tax

Location

Floorplan

Floorplan

EPC

EPC for Minchenden Crescent, London, N14